House for sale

Southers Rd, Fundy Rural District, NB E5S 1H3, Saint John 11 days ago
Studio Bedrooms
Houses for Sale Type
Description
If you’ve been dreaming of peace, privacy, and slowing down… this might be exactly what you’ve been waiting for.

Welcome to your own cottage-style retreat on 1 acre on the Kingston Peninsula. Tucked away on a quiet private road with only a handful of wonderful neighbours, this property offers something that’s hard to find—true quiet, total privacy, and a connection to nature, all within reach of town.

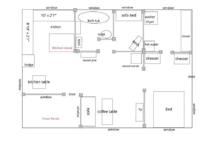
Fully renovated just 2 years ago, this home has been thoughtfully updated so you can move in and simply enjoy.

Inside, you’ll find a bright and cozy living space filled with beautiful morning light, a brand new kitchen with updated cabinets, counters, and appliances, an updated bathroom, and a flexible second room perfect for a home office or small bedroom. A spacious walk-in closet also doubles as a convenient laundry area with newer washer and dryer.

Step outside and this is where the property truly shines…
Enjoy your morning coffee or evening unwind on the decks, relax in the hot tub under a covered gazebo, or gather with friends and family around the fire under the stars. With no light pollution, the night sky here is something special.

The yard is surrounded by mature trees, creating a completely private, peaceful setting. A raised garden box is already in place for growing your own vegetables or flowers, and there’s plenty of space to enjoy the outdoors in every season.

Just a 1-minute walk to the river, and only minutes to ferry access, this location offers the perfect balance of seclusion and convenience.

FEATURES & UPGRADES:
Fully renovated (2 years ago)
New kitchen (cabinets, counters, appliances)
Updated bathroom
Updated plumbing
Metal roof
Heat pump baseboard heating
New wood stove with new chimney
New well casing
New eavestrough
New and updated decks
18 ft storage shed
Hot tub with new covered gazebo
Raised garden bed
1 acre private lot surrounded by mature trees
Structure: single-level home (no basement, set on piers and beams)

LOCATION HIGHLIGHTS:
Kingston Peninsula
Private, quiet road
5 minutes to Millidgeville ferry
10 minutes to Grand Bay-Westfield ferry
20 minutes to Kingston Farmers Market

WHY YOU’LL LOVE IT:
This home truly feels like living at the cottage year-round.
It’s peaceful, quiet, and incredibly private—with some of the best well water you’ll ever taste.

Whether you’re looking to downsize, simplify, or just escape the hustle and bustle, this property offers a lifestyle that’s hard to find.


Message us today to book your private viewing or call or text 1-506-651-3903
Read more
Market Price Insight
Based on 5,364 rental transactions in Saint John
$1.02
Avg $/sqft
$1,235
Avg Monthly
15118% above avg
This Listing
Source: Market data 2019–2026 · Saint John
Location

Approximate location shown for privacy.