A VERY UNIQUE OPPORTUNITY!

2695 Main Street, Winnipeg, MB, Winnipeg 13 hours ago
Studio Bedrooms
Houses for Sale Type
Description
You can’t open a newspaper, or turn on your television nowadays, without seeing somebody talking about affordable housing. The story’s always the same; there’s a huge need, but very little is being done to meet that need. In our own small way, we think we can help!



Here’s what makes this opportunity unique? Firstly, we’re opening up two new lots at Rivergrove Estates, Manitoba’s premiere manufactured home park, one of which is a golf course lot. Secondly, we’re giving home buyers two different home plans to choose from. So, you not only get to choose your lot, but you also get to choose the new home that goes on that lot.



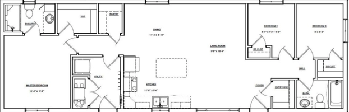
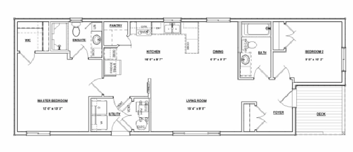
So, if you’re looking for one of those very hard to find affordable homes, you might want to consider this unique opportunity. One home is a 2 bedroom, 2 bath, priced at $284,500, while the other is a 3 bedroom, 2 bath, priced at only $289,500. Complete with stainless steel kitchen appliances and central air conditioning, these move-in ready homes can be purchased for as little as 5% down, with total monthly payments less than what you would pay to rent most 2-bedroom apartments in Winnipeg.



How do we make it that affordable? It’s all because of the unique ownership structure at Rivergrove Estates. In our park, you own your home, but you lease the land the home sits on. This form of ownership structure is used for many of the recreational areas in the province (Falcon Lake, the Whiteshell, Clear Lake, Hecla Island, etc.) as well as for many high-end resort properties in the U.S.



This unique ownership structure means no Land Transfer Tax on the purchase (in excess of $3,000 on these home), no property taxes (easily $300 per month) and you get a tax credit on the monthly rent you pay for your lot. Importantly, the lease on your land falls under the Provincial Rent Control Legislation, so there’s little likelihood of a large rental increase in the future.



There are two homes to choose from, and when they’re gone, they’re gone, so if you’re in the market for an affordable home, make sure you check out this unique opportunity!



To arrange a private viewing, or to receive a detailed information package, call/text Tom Creighton at 204-229-1775, or email [email protected].





RIVERGROVE ESTATES

CITY CONVENIENT! COUNTRY QUIET!
Read more
Market Price Insight
Based on 63,016 rental transactions in Winnipeg
$0.77
Avg $/sqft
$1,368
Avg Monthly
21063% above avg
This Listing
Source: Market data 2019–2026 · Winnipeg
Location

Approximate location shown for privacy.