4 1/2 à louer construction neuve

Saint-Hugues, QC J0H 1N0, Saint-Hyacinthe 18 hours ago
Studio Bedrooms
Apartments & Condos for Rent Type
Description
*** Il me reste 1 logement au 2e étage (4 1/2 à 1425$ disponible pour le 1er juillet

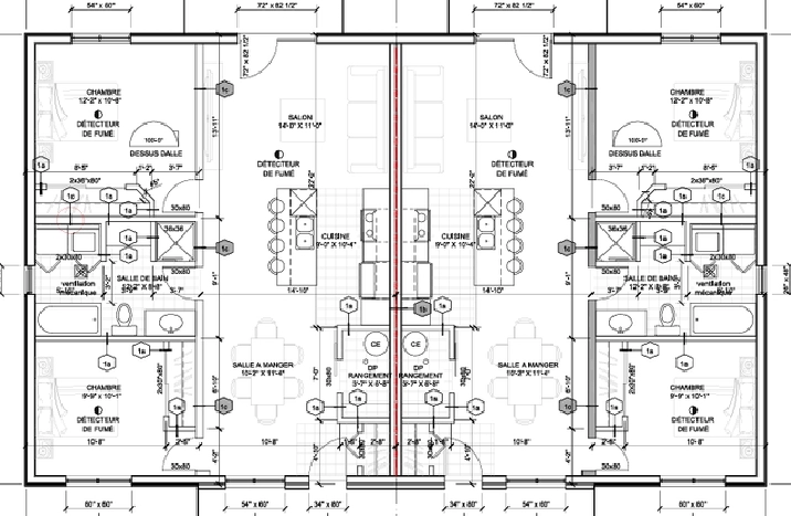
Construction neuve

- 466 à 472, rue Notre-Dame, St-Hugues

- 955 pieds carrés;

- 2 places de stationnement;

- Perron avant et perron arrière;

- Air climatisé / thermopompe;

- Plancher chauffant au rdc;

- Balayeuse centrale;

- Entrée lave-vaisselle;

- Entrée laveuse/sécheuse;

- Non-fumeur;

- Animaux interdits.

Au cœur du village de Saint-Hugues, il est aussi à proximité de l’épicerie, école et garderie.

Pour plus de renseignements, contacter Carolane au (450) 847-5637
Read more
Market Price Insight
Based on 2,707 rental transactions in Saint-Hyacinthe
$1.20
Avg $/sqft
$1,072
Avg Monthly
33% above avg
This Listing
Source: Market data 2019–2026 · Saint-Hyacinthe
Price History — Apartments & Condos for Rent in Saint-Hyacinthe

Average monthly rent based on historical market data for this category and city.

Location

Approximate location shown for privacy.